Wohnung zur Miete in Rheine-Mesum
Barrierefreie Wohnung mit eigenem Garten!

offen

Beschreibung

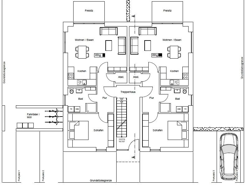
Eine sonnige und barrierefrei aufgeteilte Erdgeschosswohnung mit eigenem Garten in einem Mehrfamilienhaus mit insgesamt nur 4 Wohneinheiten.

Die Wohnung ist aufgeteilt in Wohn-Esszimmer mit sonniger Terrasse, offener Küche, Flur, Schlafzimmer, Abstellraum, Bad mit barrierefreier Dusche und WC. Zur Wohnung gehört zusätzlich ein separater Kellerraum. Für Fahrräder und Mülltonnen steht eine geräumige Gemeinschaftsgarage zur Verfügung.

Der Grundriss ist Spiegelverkehrt dargestellt.

Ausstattung

+ Helle, lichtdurchflutete Räume durch überwiegend raumhohe Fenster
+ Energiesparende Massivbauweise (KfW-Effizienzhaus 70)
+ Heizsystem: verbrauchsgünstige Brennwertgasheizung mit Fußbodenheizung
+ Warmwasserbereitung durch unterstützende Solaranlage
+ Sanitärausstattung in moderner Markenqualität
+ Geflieste Bereiche: Küche, Diele und Bad
+ Moderner Bodenbelag in Wohn- und Schlafräumen
+ Malerarbeiten an Wandflächen werden vom Mieter ausgeführt

Lage

In absolut zentraler Wohnlage von Rheine -Mesum, angrenzend an den Dorfplatz.

Der Ortskern mit optimaler Nahversorgung liegt vor der Haustür. Vielfältige Einkaufsmöglichkeiten für den täglichen Bedarf, Ärzte und Apotheken sind im Ortszentrum vorhanden. Zum Spazieren oder Joggen an die Ems mit ihren angrenzenden Waldflächen sind es ca. 800 Meter. Mesum verfügt über einen eigenen Bahnhof mit direktem Anschluss in Richtung Münster und Lingen. Stadtbusse in die City von Rheine fahren alle 30 Minuten. Gut funktionierende Sport- und sonstige Vereine bieten viele Möglichkeiten für soziale Kontakte und interessante Freizeitgestaltung.

Rheine an der Ems ist mit ca. 78.000 Bewohnern die größte Stadt im Kreis Steinfurt. Die Ems durchfließt die Stadt von Süden nach Norden und lädt zu vielen Aktivitäten ein. Ob mit dem Rad, zu Fuß, oder dem Kanu - nutzen Sie die vielfältigen Möglichkeiten! Beliebtes Freizeitziel ist der NaturZoo Rheine, in unmittelbarer Nähe zur Saline Gottesgabe und dem Kloster Bentlage. In Rheine ist immer etwas los - ob Feste oder Feiern, Kunst und Kultur, Ferien oder Freizeit.
Das abwechslungsreiche Angebot an Geschäften sowie attraktive Märkte machen die Innenstadt zu einem echten Einkaufserlebnis.
Außerdem zeichnet sich Rheine durch eine hervorragende Verkehrsanbindung aus. Die Stadt ist an eine Vielzahl regionaler und überregionaler Verkehrsnetze angebunden. Die Autobahn A 30 stellt eine schnelle Verbindung zur A 31 und zur A 1 her, Osnabrück und die Niederlande sind jeweils nur eine halbe Autostunde entfernt.

Sonstiges

Eine interessante Wohnung in guter Lage mit günstigen Nebenkosten durch die gute Dämmung und die modernste Heiztechnik.

Die Wohnung ist mit einer bestens nutzbaren Größe konzipiert und für den Ein/Zweipersonenhaushalt gut geeignet.

Die Vermieter sind an einem längerfristigen Mietverhältnissen interessiert.

Tierhaltung (Hunde und Katzen) ist nicht gewünscht.

Bitte haben Sie Verständnis, dass wir aufgrund der Nachweispflicht gegenüber dem Eigentümer und gesetzlicher Bestimmungen (Geldwäschegesetz) nur Anfragen mit vollständiger Nennung Ihres Namens, Ihrer Anschrift und einer Rückrufmöglichkeit bearbeiten können. Nachdem Sie uns Ihre Daten per Email bekannt gegeben haben, übersenden wir Ihnen gerne ein Exposé oder vereinbaren mit Ihnen einen Besichtigungstermin.

Ansprechpartner

Matzker Immobilien GmbH & Co KG

Telefon: 0049257298425

» j.eisfeld@matzker-immobilien.de
» Anbieter Impressum

Kontakt aufnehmen

Wohnung zur Miete

Miete zzgl. NK 600 €
Nebenkosten 180 €
Miete inkl. NK 780 €
Kaution 1.200 €
Adresse 48432 Rheine-Mesum
Wohnfläche ca. 61,26 m²
Zimmer 2
Objekt-Nr. 1190

Ausstattung

Anzahl Badezimmer 1
Anzahl Schlafzimmer 1
Anzahl Terrassen 1
Anzahl Zimmer 2
Haustiere erlaubt
Kabel/Sat-TV
verfügbar ab Dezember 2025
Verkaufstatus offen
Zustand gepflegt

Erfolg! Vielen Dank für Ihre Bewertung.

Fehler! Bitte füllen Sie alle Felder aus.