Wohnung zur Miete in Emsdetten
Energieeffizientes Wohnen in Top Lage
Beschreibung
Der moderne Wohnkomplex, mit seiner hochwertigen Architektur, ist nach KFW55EE Standard errichtet worden. Die 19 Wohnungen umfassen eine hochwertige, ressourcenschonende Ausstattung, gepaart mit einem modernen Energiekonzept.
Die Wohnung verfügt über einen durchdachten Grundriss. Die großen Fenster und Türen sorgen für absoluten Wohlfühlfaktor und gute Belichtung. Die Wohnungslüftungsanlage sorgt für ein gesundes Raumklima. Luftzirkulation erfolgt zusätzlich durch die integrierte Be- und Entlüftungsanlage. Die Bedienung der Fußbodenheizung lässt sich individuell je Raum steuern. Die Fußböden werden mit ansprechendem Designboden in Eichenoptik ausgestattet und sorgen für ein modernes Gesamtergebnis.
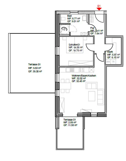
Die Wohnung teilt sich auf in Flur, Badezimmer mit Dusche, Schlafzimmer, Wohn-/Essbereich, Hauswirtschaftsraum. Zur Wohnung gehören zwei Terrassen.
In der Tiefgarage befindet sich zu jeder Wohnung ein eigener Kfz-Stellplatz. Hierbei ist auch teilweise das Laden eines E Fahrzeuges möglich. Ein eigener, zu der Wohnung gehörender Kellerraum, welcher auch ausreichend Stellfläche für E Bikes bietet, gehört ebenfalls zu jeder Wohnung. Zwei Aufzüge sorgen für weiteren Komfort. Die Aufzüge reichen bis in das 3. Obergeschoss, somit können Sie sich als Mieter bequem und barrierefrei im gesamten Komplex bewegen.
Ausstattung
Hochwertige Ausstattung vereint mit einzigartigem Wohngefühl
+ ca. 32, 45 m² großes Wohn-/Esszimmer mit offener Küche
+ Wohn-/Essbereich mit Zugang auf zwei Terrassen
+ Offen gestaltete Wohnungen mit großzügigem Raumgefühl
+ Hochwertige Fliesen und Designböden
+ Fußbodenheizung in allen Räumen, separat regulierbar
+ Zentrale Wohnlage mit hochwertiger Architektur
+ Elektrische Rollläden/Raffstores an allen Fenstern
+ Top Energiestandard (Kfw 55EE), Energiekonzept mit Erdwärme
+ Eigener Tiefgaragenstellplatz für jede Wohnung (60 € monatl.) (E Auto möglich)
+ Dezentrale Wohnungslüftungsanlage
+ Eigener, großer Kellerraum zu jeder Wohnung
+ Barrierefreie Erreichbarkeit aller Wohnungen dank zweier Aufzüge
+ Der Energieausweis befindet sich in Bearbeitung
Lage
Gut eingewachsene, stadtzentrale Lage von Emsdetten. Zur Innenstadt bzw. Bahnhof sind es nur wenige Meter. Alle Dinge für den täglichen Bedarf liegen praktisch um die Ecke.
Emsdetten mit ca. 36.000 Einwohnern, im Herzen des Kreises Steinfurt gelegen, erfreut sich immer größerer Beliebtheit. Der Stadtkern bietet mit seinen attraktiven Einkaufsmöglichkeiten und den zwei Markttagen ein reizvolles Flair. Neben einem Kino verfügt die Stadt auch über eine belebte Gastronomie. Die EMS-HALLE, eine der größten Veranstaltungshallen der Region ist regelmäßig Bühne für Top-Veranstaltungen aus Musik, Theater, Sport und Comedy. Genießen Sie per Rad, Pferd, oder zu Fuß die unberührte Natur im Emsdettener Venn. Die Ems mit den Emsauen ist eine gute Basis für eine Kanutour.
Außerdem zeichnet sich Emsdetten durch eine hervorragende Verkehrsanbindung aus. Die Universitätsstadt Münster und die Stadt Rheine liegt in unmittelbarer Nähe, mit der Deutschen Bahn sind Sie schnell am Ziel. Auch die Städte Osnabrück und Enschede sind durch die verkehrsgünstige Lage schnell erreicht. Zum internationalen Flughafen Münster/Osnabrück brauchen Sie nur ca. 15 Autominuten.
Sonstiges
Hochwertige Wohnung im I. Obergeschoss eines repräsentativen Wohnkomplexes. Die Gestaltung und ansprechende Innenausstattung wird Sie begeistern. Wenn Sie an einem dauerhaften Mietverhältnis interessiert sind, ist die Wohnung bestens dafür geeignet.
Der Vermieter wünscht ein Mietverhältnis von mindestens zwei Jahren. Tierhaltung (Hunde, Katzen) ist nicht gewünscht.
Bitte haben Sie Verständnis, dass wir aufgrund der Nachweispflicht gegenüber dem Eigentümer und gesetzlicher Bestimmungen (Geldwäschegesetz) nur Anfragen mit vollständiger Nennung Ihres Namens, Ihrer Anschrift und einer Rückrufmöglichkeit bearbeiten können. Nachdem Sie uns Ihre Daten bekannt gegeben haben, übersenden wir Ihnen gerne ein Exposé oder vereinbaren mit Ihnen einen Besichtigungstermin.
Kontakt aufnehmen
Energieeffizientes Wohnen in Top Lage
Ansprechpartner
Matzker Immobilien GmbH & Co.
Telefon: 0049257298425
» l.krug@matzker-immobilien.de
» Anbieter Impressum
Wohnung zur Miete
| Miete zzgl. NK 795 € |
| Nebenkosten 185 € |
| Miete inkl. NK 980 € |
| Kaution 1.710 € |
| Heizkosten in Nebenkosten enthalten |
| Adresse 48282 Emsdetten |
| Wohnfläche ca. 81,48 m² |
| Zimmer 2 |
| Objekt-Nr. 3514 |
Ausstattung
| Anzahl Badezimmer 1 |
| Anzahl Schlafzimmer 1 |
| Anzahl Stellplätze 1 |
| Anzahl Terrassen 1 |
| Anzahl Zimmer 2 |
| Baujahr 2023 |
| Befeuerungsart Erdwärme mit Wärmepumpe |
| Lage im Objekt (Etage) 1 |
| Heizungsart Fußbodenheizung |
| Tiefgaragenstellplätze 1 |
| Stellplatzmiete (Tiefgarage) 60 € |
| Unterkellert |
| verfügbar ab 01.03.2026 |
| Verkaufstatus offen |
| Zustand gepflegt |