Haus zum Kauf in Münster / Hiltrup
Mehrfamilienhaus mit 9 WE in ruhiger Lage von Hiltrup-Ost
Beschreibung
Das 1980 erbaute Mehrfamilienhaus umfasst insgesamt neun Wohneinheiten mit einer Wohnfläche von rund 422 m². Vier Wohnungen verfügen über einen Balkon, fünf weitere sind als Apartments gestaltet. Den Bewohnern stehen drei Stellplätze zur Verfügung.
Das Gebäude befindet sich in einem gepflegten Gesamtzustand und wurde laufend modernisiert. Im Jahr 2022 wurden eine neue Gas-Brennwertheizung sowie moderne 3-fach-verglaste Kunststofffenster im gesamten Gebäude eingebaut. Zusätzlich wurden Dämmmaßnahmen und Renovierungen am Haus regelmäßig durchgeführt.
Sämtliche Wohnungen sind vermietet und erwirtschaften jährliche Nettomieteinnahmen von ca. 49.171,92€.
Ausstattung
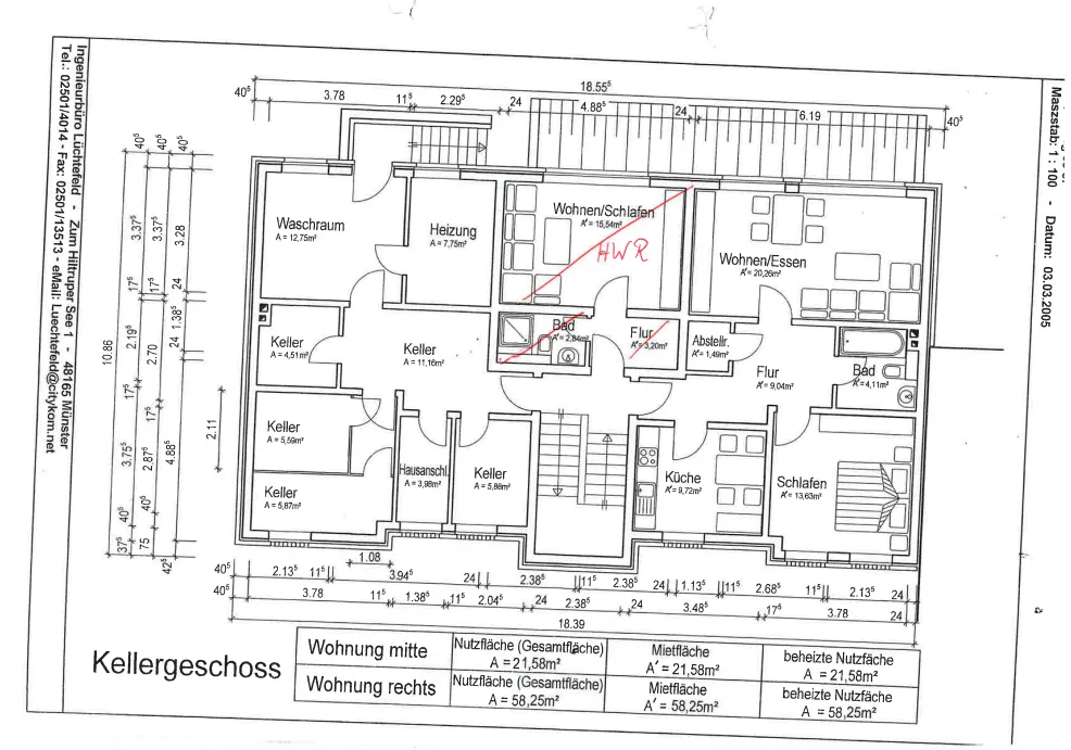
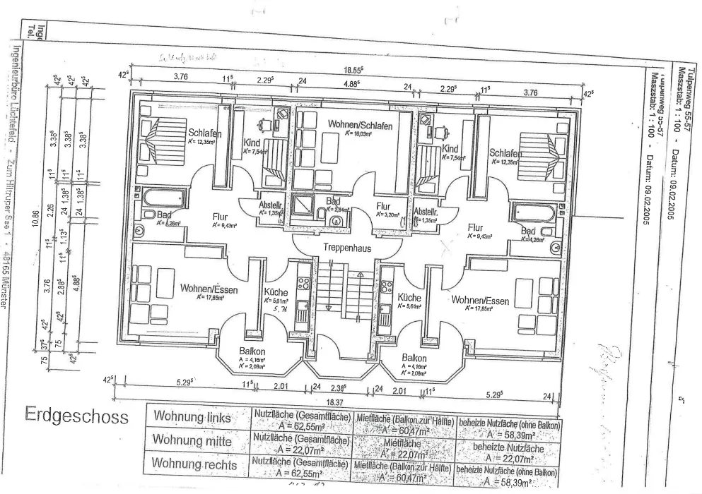
Wohnfläche wie folgt aufgeteilt:
EG: li 61,41m²/ 540,70€, re 61,41m²/540,73€, mi 22,07m²/266,14€
I. OG: li 61,41m²/550,36€, re 61,41m²/538,73€, mi 22,07m²/275,00€
DG: li 46,46m²/450,00€, re 47,10m²/460,00€
KG: 1 x 46,53m²/476,00€
Jahresnettokaltmiete beträgt insgesamt: 49.171,92€
Ein Energieausweis befindet sich in Vorbereitung
Lage
Dieses interessante Immobilienangebot befindet sich in einer bevorzugten Wohnlage im Osten von Münster-Hiltrup, in nur 500m Entfernung zum Kanal, im Emmerbachtal. Als "Stadt in der Stadt" bietet der Ortsteil Hiltrup vielfältige Einkaufsmöglichkeiten und liegt dennoch nur wenige Kilometer von der Münsteraner Innenstadt entfernt. Diese ist per Auto über den Albersloherweg bzw. die Westfalenstraße oder mit dem regelmäßig verkehrenden Linienbus bequem in 15 Minuten Fahrzeit zu erreichen. Eine sehr gute überregionale Mobilität bietet Ihnen der Haltepunkt der DB in nächster Nähe. Die Anbindung Richtung Hamm und Münster HBF ist dadurch gegeben.
Auf Hiltrups Haupteinkaufsstraße, der Marktallee, finden Sie alles für den täglichen Einkauf, gemütliche Restaurants und ein ausreichendes Ärzteangebot. Das Schwimmbad, ein großes beliebtes Freibad, die Stadthalle und vielfältige Sportmöglichkeiten sind weitere Gründe, warum dieser Stadtteil so beliebt ist. Die nahen Waldgebiete und der Dortmund-Ems-Kanal bieten außerdem attraktive Erholungsmöglichkeiten.
Weiterführende Schulen, allein in diesem Ortsteil zwei Gymnasien, diverse Grundschulen und Kindergärten, bieten Ihnen und Ihren Kindern ein reichhaltiges Bildungsangebot. Genießen Sie die zentrale und doch ruhige Wohnlage am Rande des Landschaftsschutzgebietes und den Charme der sympathischen Nachbarschaft...
Sonstiges
Bitte haben Sie Verständnis, dass ich nur komplett ausgefüllte Anfragen einschließlich Ihrer Adresse und einer Telefon-Nummer beantworten kann.
Ihre Ansprechpartnerin:
Nicole Mönnig
Prokuristin, Bankkauffrau
Festnetz: 0251 - 418 4822
Mobil: 0172 - 522 7283
Email: n.moennig@homann-immobilien.de
Kontakt aufnehmen
Mehrfamilienhaus mit 9 WE in ruhiger Lage von Hiltrup-Ost
Ansprechpartner
HOMANN IMMOBILIEN Münster GmbH
Telefon: 00492514184822
Telefax: 00492514184890
» n.moennig@homann-immobilien.de
» Anbieter Impressum
Haus zum Kauf
| Kaufpreis 1.200.000 € |
| Kaufpreis pro m² 2.791,54 € |
| Adresse 48165 Münster / Hiltrup |
| Wohnfläche ca. 429,87 m² |
| Zimmer 18 |
| Grundstücksfläche ca. 629 m² |
| vermietbare Fläche ca. 429,87 m² |
| Objekt-Nr. 2687 |
Käuferprovision zzgl. MwSt
4,76%
Ausstattung
| Anzahl Badezimmer 9 |
| Anzahl Balkone 4 |
| Anzahl Stellplätze 3 |
| Anzahl Zimmer 18 |
| Baujahr 1980 |
| Befeuerungsart Gas |
| Heizungsart Zentralheizung |
| Stellplätze 3 |
| Unterkellert |
| Verkaufstatus offen |
| Vermietet |
| Zustand gepflegt |