Wohnung zum Kauf in Münster
Dechaneiviertel - Exklusives Wohnen!
Neubau - Erstbezug!
Beschreibung
Architektur mit Charakter – stilvolle Verbindung von Tradition und Moderne!
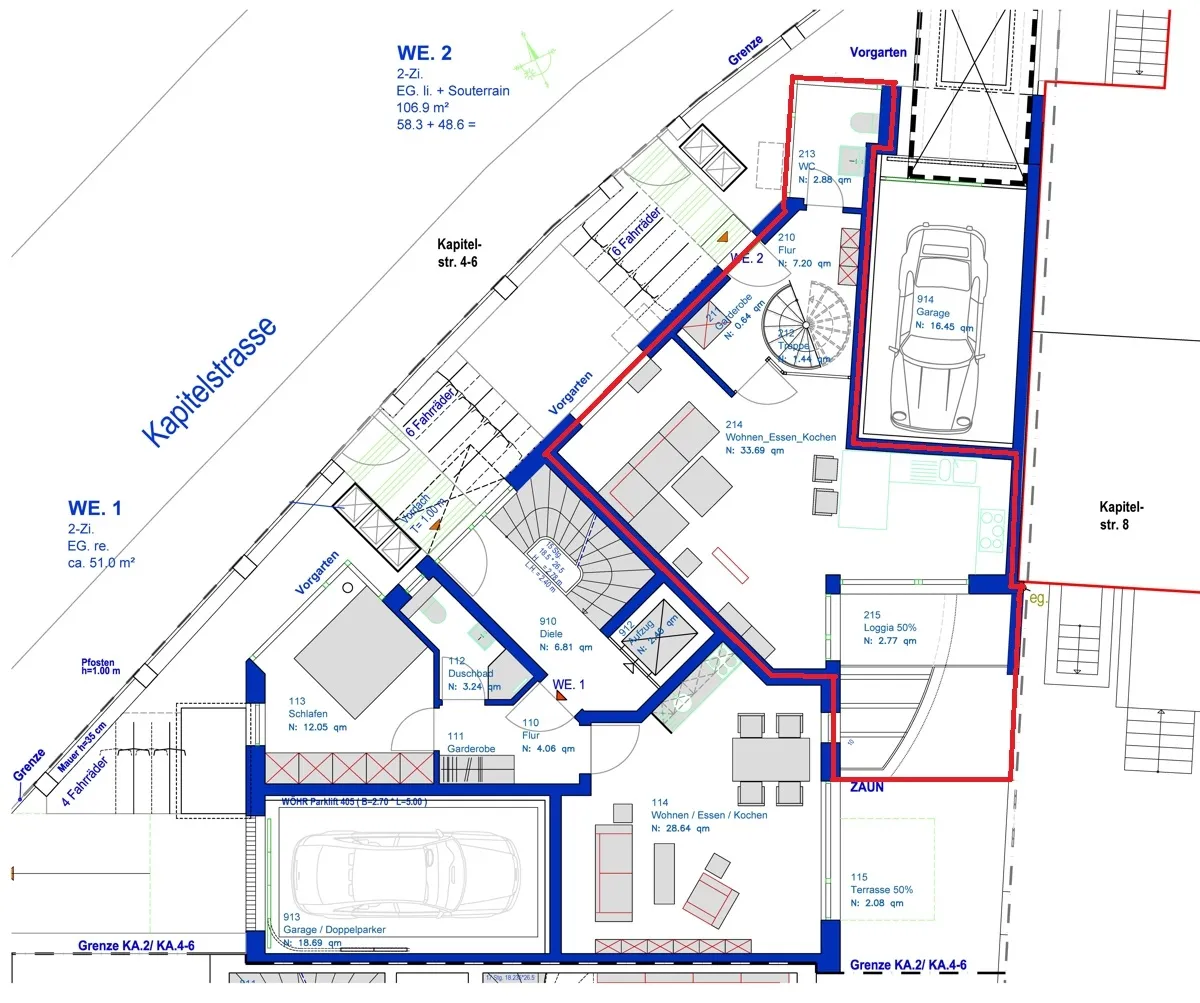
Diese hochwertige Maisonettewohnung im Erdgeschoss und Souterrain eines architektonisch anspruchsvollen Neubaus bietet auf ca. 107 m² ein durchdachtes, exklusives Wohnambiente.
Der private Hauseingang führt in den einladenden Entrée-Bereich mit Garderobennische und modernem Gäste-WC. Mittelpunkt der Wohnung ist der offene Wohn-, Ess- und Kochbereich mit bodentiefen Fenstern und Zugang zur nach Osten ausgerichteten Loggia – ideal für sonnige Stunden im Freien.
Im Souterrain erwarten Sie ein großzügiges Schlafzimmer mit direktem Zugang zur geschützten Gartenhof-Terrasse sowie eine komfortable, abgeteilte Ankleide. Ein weiteres Zimmer, ein stilvolles Tageslichtbad mit Dusche und ein funktionaler Hauswirtschaftsraum runden das Raumangebot ab.
Besonders attraktiv: Durch die vorteilhafte Bewertung der Souterrainfläche und die Nichtbewertung des Hauswirtschaftsraumes von ca. 7,5 m² Fläche ergibt sich ein außergewöhnlich günstiger Kaufpreis – eine seltene Gelegenheit, eine Neubauwohnung dieser Qualität zu erwerben.
Ausstattung
Die hochwertige Qualität der Ausstattung, große Fensterfronten, sowie das offene und großzügige Wohnkonzept bieten Entfaltungsraum für einen anspruchsvollen Lebensstil.
Die Highlights auf einem Blick:
-KFW-55-Standard
-Geothermie-Heizsystem
- Maisonette Wohnung
-Aufwendige Elektro- und Sanitärinstallation
-Hochwertige Fliesen
-3-Fachverglasung mit erhöhtem Schallschutz inkl. Raffstores
-Kontrollierte Wohnraumlüftung
-Wohnen-Essen-Kochen auf über 33 m² Wohnfläche
-Eigener Hauseingang
- 4 Außen-Fahrradstellplätze
-Natursteinfassade im Erdgeschoss
- Eigentümergemeinschaft nur 4 Parteien
- Bei Investment - sehr gute Vermietbarkeit
Bei einer Vermietung erzielen Sie ca. 1.500€/p.m. Kaltmiete. Dies entspricht ca. 18.000€/p.a. und somit einer Rendite von 3,15% !
Lage
WOHNEN IN MÜNSTERS BEGEHRTESTER WOHNLAGE!
In Mitten von stilvollen Stadtvillen und klassischen Häusern errichten wir für Sie eine Maisonettewohnung der Extraklasse.
Das Dechaneiviertel im Herzen von Münster war schon in den 30er-Jahren ein sehr begehrter Stadtteil. Dies kommt nicht von ungefähr! Denn diese sehr bevorzugte Wohnlage begeistert mit Zentralität und Ruhe. Von hier aus gelangen Sie binnen weniger Minuten ins Zentrum der Stadt, in den Wienburgpark und an den Aasee.
Dank seiner gewachsenen Infrastruktur hat sich das Viertel zu einem Stadtteil von sehr hoher Wohnqualität entwickelt. Die anliegende Warendorfer Straße umfasst alles, was für ein qualitatives Leben notwendig ist. Neben Supermärkten und Cafés sowie Restaurants finden Sie hier ein attraktives Angebot an Fachgeschäften, wie z. B. Bio- und Feinkostläden, Fahrradläden sowie Post- und Bankfilialen. Ärzte, Apotheken, das St. Franziskushospital und das Hallenbad-Ost sind ebenfalls schnell erreichbar. Eine Grundschule ist in zwei Fußminuten, eine Realschule in zehn Fußminuten und ein Gymnasium in zehn Fahrradminuten zu erreichen.
Für Entspannung außer Haus sorgt der nahegelegene und liebevoll genannte "Ententeich". Eine grüne Oase in Mitten von stilgetreuen Villen. Ebenfalls stehen Ihnen eine renommierte Tennisanlage und ein Reitstall in St. Mauritz zur Verfügung. Fünf Golfplätze erreichen Sie in 15 bis 30 Minuten.
Die Verkehrsanbindungen Ihres neuen Zuhauses sind ebenfalls ideal: So verleihen Ihnen die Autobahnanschlüsse an die A 1 und die A 43 auch überregional eine hervorragende Mobilität ebenso wie der nur 20-Autominuten entfernte Flughafen Münster-Osnabrück. Des Weiteren ist eine ideale Busanbindung auf der Warendorfer Straße gegeben.
Lassen Sie sich begeistern, von einem Zuhause in einer sensationellen Lage in welchem das Wohnen neu erlebt wird.
Sonstiges
Eine Immobilie, die modernes Wohnen, hochwertige Architektur und eine erstklassige Lage perfekt vereint.
Gerne stellen wir Ihnen die Neubauwohnung persönlich in einer Besichtigung vor.
Sie kaufen PROVISIONSFREI direkt vom Bauträger.
Kontakt aufnehmen
Dechaneiviertel - Exklusives Wohnen! Neubau - Erstbezug!
Ansprechpartner
HOMANN exclusives wohnen GmbH
Telefon: 00492514184870
Telefax: 00492514184890
» info@homann-exclusives-wohnen.de
» Anbieter Impressum
Wohnung zum Kauf
| Kaufpreis 566.000 € |
| Kaufpreis pro m² 5.289,72 € |
| Adresse 48145 Münster |
| Wohnfläche ca. 107 m² |
| Zimmer 3 |
| Objekt-Nr. 2832 |
Ausstattung
| Anzahl Badezimmer 1 |
| Anzahl Balkone 1 |
| Anzahl Schlafzimmer 2 |
| Anzahl separate WCs 1 |
| Anzahl Terrassen 1 |
| Anzahl Zimmer 3 |
| Baujahr 2025 |
| Befeuerungsart Erdwärme mit Wärmepumpe |
| Heizungsart Fußbodenheizung |
| Kabel/Sat-TV |
| Unterkellert |
| Verkaufstatus offen |
| Zustand Erstbezug |