Büro/Praxis zur Miete in Münster
Exklusive 714 m² Büroetage mit Panoramablick über Münster
Beschreibung
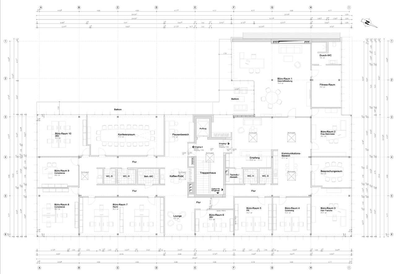
Dieses attraktive Büro- und Praxishaus in zentrumsnaher Lage in Münster bietet ideale Voraussetzungen für moderne Arbeitskonzepte. Die großzügigen Flächen schaffen viel Raum für individuelle Gestaltungsmöglichkeiten und lassen sich flexibel an unterschiedliche Anforderungen anpassen.
Ein hoher Tageslichteinfall durch großflächige, bodentiefe Fenster sorgen für eine helle und freundliche Atmosphäre. Der Grundriss ermöglicht verschiedene Raumkonzepte. Von klassischen Bürostrukturen über offene Arbeitslandschaften bis hin zu Praxis- oder Schulungsflächen. Die moderne Ausstattung erfüllt zeitgemäße Ansprüche und bietet eine solide Basis für einen repräsentativen Unternehmensauftritt. Der barrierefreie Zugang zum Objekt sowie eine barrierefreie Sanitäranlage gewährleisten eine komfortable Nutzung für alle Mitarbeiter, Kunden und Besucher.
Ein weiterer Pluspunkt ist die komfortable Parkmöglichkeit direkt am Objekt. Stellplätze können optional angemietet werden.
Die ruhige und gehobene Mieterstruktur unterstreicht den repräsentativen Charakter der Immobilie und schafft ein angenehmes, professionelles Umfeld. Eine Büro- und Praxisfläche, die mit Großzügigkeit, Funktionalität und zeitgemäßem Komfort überzeugt. Die flexible Flächenstruktur, die helle Atmosphäre und die gute Lage schaffen ideale Bedingungen für erfolgreiche Geschäftsmodelle unterschiedlichster Art.
Der Energieausweis ist beauftragt.
Lage
Das Büro- und Praxishaus liegt in innenstadtnaher Lage und verbindet die Vorzüge der Münsteraner Innenstadt mit einer ausgezeichneten Verkehrsanbindung. Der Anschluss an den öffentlichen Personennahverkehr ist hervorragend. Die Buslinie 5 hält direkt vor der Tür und bringt Sie in wenigen Minuten zum Hauptbahnhof, dem zentralen Knotenpunkt aller Buslinien. Der Hauptbahnhof bietet eine optimale Anbindung für regionale und überregionale Pendler. Die Nähe zu den Autobahnen A1 und A43 gewährleistet eine schnelle und unkomplizierte Anreise auch mit dem Auto.
Die Umgebung zeichnet sich durch eine sehr gute infrastrukturelle Versorgung aus. Zahlreiche Geschäfte des täglichen Bedarfs, Apotheken sowie Arztpraxen befinden sich in unmittelbarer Nähe und tragen zur hohen Attraktivität des Standorts bei. Das Umfeld ist geprägt von einer gewachsenen Mischung aus Wohngebäuden, Büro-, Dienstleistungs- und Einzelhandelsnutzungen und bietet damit ein lebendiges Arbeitsumfeld. Abgerundet wird die Lage durch nahegelegene Grün- und Erholungsflächen, die Raum für Pausen und Erholung bieten und die Aufenthaltsqualität zusätzlich steigern.
Die Provision beträgt 3 % der 10-fachen Jahreskaltmiete.
Sonstiges
Baujahr: 2015
Heizungsart: Wärmepumpe
Befeuerung/Energieträger: Strom
Kontakt aufnehmen
Exklusive 714 m² Büroetage mit Panoramablick über Münster
Ansprechpartner
Dr. Schorn GmbH
Telefon: +49 251 97212 0
Telefax: +49 251 97212 22
» kontakt@dr-schorn.de
» Anbieter Impressum
Büro/Praxis zur Miete
| Miete zzgl. NK 12.138 € |
| Miete pro m² 17 € |
| Nebenkosten 1.970 € |
| Miete inkl. NK 14.108 € |
| Adresse 48153 Münster |
| Bürofläche ca. 714 m² |
| Objekt-Nr. 3655 |
Mieterprovision
Die Provision beträgt 3 % der 10-fachen Jahreskaltmiete.
Ausstattung
| Anzahl Etagen 5 |
| Barrierefrei |
| Baujahr 2015 |
| Befeuerungsart Elektro |
| Lage im Objekt (Etage) 5 |
| Fahrstuhl Personen |
| Heizungsart Zentralheizung |
| Provisionspflichtig |
| verfügbar ab 01.01.2027 |
| Zustand gepflegt |