Haus zum Kauf in Münster
Kleine Doppelhaushälfte mit Garten
. Attraktives Vermietungsobjekt mit AfA-Steuervorteil
Beschreibung
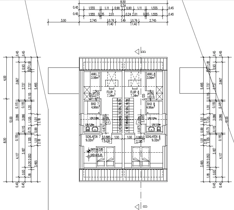
Diese Maisonettewohnung vereint die Vorzüge eines Smart Houses mit dem Wohngefühl einer Doppelhaushälfte und bietet mit rund 63 m² Wohnfläche ein durchdachtes Raumkonzept, das sowohl Eigennutzer als auch Kapitalanleger anspricht.
Der energieeffiziente KfW-50-Standard sorgt für niedrige Betriebskosten und ermöglicht in Kombination mit der Abschreibung für Abnutzung einen zusätzlichen steuerlichen Vorteil bei Vermietung. Die Wohnung eignet sich aufgrund ihrer Größe, Aufteilung und Lage ideal als nachhaltiges Investment.
Das Erdgeschoss bildet das Herzstück der Wohnung. Der rund 30 m² große Wohn-, Ess- und Küchenbereich ist offen gestaltet und profitiert von großzügigen Fensterflächen, die viel Tageslicht hereinlassen und den Blick in den Garten freigeben. Der Grundriss schafft eine angenehme Verbindung zwischen Kochen, Essen und Wohnen und eignet sich sowohl für den Alltag als auch für gesellige Abende.
Der direkt angebundene Garten erweitert den Wohnraum nach außen und bietet einen privaten Rückzugsort mit vielfältigen Gestaltungsmöglichkeiten. Böden und Außenanlagen können nach eigenen Vorstellungen bemustert und ausgeführt werden.
Ergänzt wird das Erdgeschoss durch einen Hauswirtschaftsraum mit Waschmaschinenanschluss. Dieser kann optional gegen Aufpreis als Gäste-WC ausgeführt werden.
Im Obergeschoss befindet sich der private Bereich der Wohnung. Das Schlafzimmer mit angrenzender Ankleide bietet eine klare Trennung von Wohnen und Ruhen und sorgt für ein aufgeräumtes Raumgefühl. Das modern geplante Badezimmer verfügt über ausreichend Platz für eine komfortable Ausstattung.
•KfW-50-Energiestandard
•Ca. 63 m² Wohnfläche in Maisonettebauweise
•Großzügiger Garten mit Gestaltungsfreiheit
•Individuelle Auswahl von Bodenbelägen und Außenanlagen
•Optimal geeignet als Vermietungsobjekt mit steuerlichem AfA-Vorteil
Der Energieausweis ist in Auftrag gegeben.
Diese Immobilie verbindet modernes Wohnen, Energieeffizienz und Investitionssicherheit in überzeugender Weise. Eine Wohnung, die sowohl heute als auch langfristig überzeugt.
Lage
Diese Eigentumswohnung befindet sich in Münster- Vennheide zwischen den Stadtteilen Hiltrup und Berg Fidel. Die Lage bietet eine perfekte Mischung aus zentralem und naturnahem Wohnen. Sie profitieren von der Nähe zu Freizeitmöglichkeiten wie dem Preußenstadion sowie den idyllischen Grüngürteln der Vennheide. Die gute Verkehrsanbindung sorgt dafür, dass Sie das Stadtzentrum und andere Stadtteile schnell und bequem erreichen.
Sonstiges
Baujahr: 2026
Befeuerung/Energieträger: Wärmepumpe
Heizungsart: Wärmepumpe
Kontakt aufnehmen
Kleine Doppelhaushälfte mit Garten . Attraktives Vermietungsobjekt mit AfA-Steuervorteil
Ansprechpartner
Dr. Schorn GmbH
Telefon: +49 251 97212 0
Telefax: +49 251 97212 22
» kontakt@dr-schorn.de
» Anbieter Impressum
Haus zum Kauf
| Kaufpreis 359.000 € |
| Adresse 48165 Münster |
| Wohnfläche ca. 63 m² |
| Zimmer 2 |
| Grundstücksfläche ca. 280 m² |
| Objekt-Nr. 3646 |
Käuferprovision
2,38 %
Ausstattung
| Alter Neubau |
| Anzahl Badezimmer 1 |
| Anzahl Etagen 2 |
| Anzahl Schlafzimmer 1 |
| Anzahl Zimmer 2 |
| Baujahr 2026 |
| Befeuerungsart Luft/Wasser-Wärmepumpe |
| Provisionshinweis Der Käufer verpflichtet sich an die Dr. Schorn GmbH eine Maklergebühr in Höhe von 2,38 % inkl. 19% MwSt. des wirtschaftlichen Wertes (Kaufpreis zzgl. Zubehör etc.), den der Käufer dem Verkäufer schuldet, zu bezahlen. Seit dem 23.12.2020 gilt das neue Gesetz zur hälftigen Provisionsteilung von Käufer und Verkäufer, bei Einfamilienhäusern und Eigentumswohnungen: § 656 BGB. Der Verkäufer zahlt an die Dr. Schorn GmbH eine Maklergebühr in der gleichen Höhe. |
| Gartennutzung |
| Heizungsart Zentralheizung |
| Provisionspflichtig |
| verfügbar ab Oktober 2026 |
| Zustand Erstbezug |