Wohnung zum Kauf in Münster
Penthouse der Superlative! Blick auf den Aasee!

offen

Beschreibung

Luxus-Penthouse mit Aaseeblick – Eine Residenz der Extraklasse!

Dieses außergewöhnliche Luxus-Penthouse besticht durch ca.
267 m² erstklassige Wohnfläche, die sich über zwei Ebenen erstreckt. Mit seinem einzigartigen Design und exklusiven Ausstattungsmerkmalen erfüllt es alle Wünsche für ein luxuriöses Zuhause.

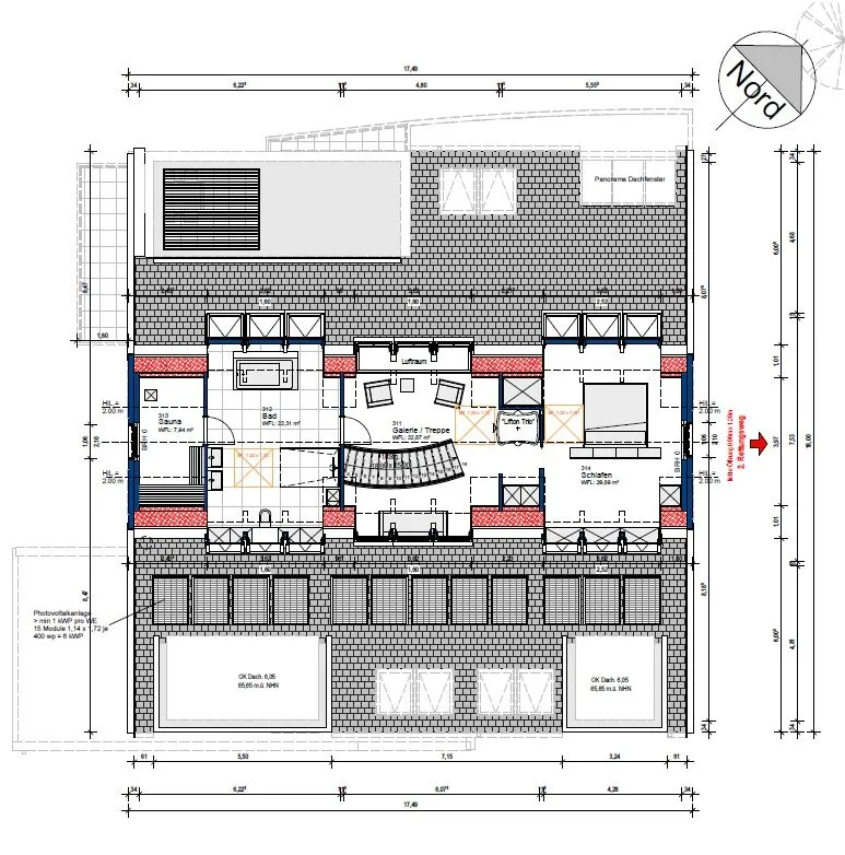
Im Obergeschoss erwartet Sie ein harmonisches Raumkonzept mit insgesamt fünf großzügigen Zimmern. Der lichtdurchflutete Wohn- und Essbereich, der sich über ca. 100 m² erstreckt, lädt mit angrenzendem Kaminzimmer zu geselligen Zusammenkünften und entspannten Abenden ein. Die bodentiefen Fenster sorgen für ein unverwechselbares Wohngefühl und bieten einen atemberaubenden Blick auf den Aasee.

Ein weiteres Highlight auf dieser Ebene ist die ca. 21 m² große Bibliothek, die auch als Arbeitszimmer genutzt werden kann. Mit ihren bodentiefen Studiofenstern eröffnet sich ein wunderschöner Ausblick auf den Aasee, der das Arbeiten oder Lesen zu einem besonderen Erlebnis macht. Zudem bietet diese Ebene ein repräsentatives Entree, das großzügigen Platz für Garderobe und Schränke bietet, sowie ein Gästezimmer, ein Gäste-WC mit Dusche und Tageslicht – perfekt für den Empfang von Besuch.

In das Dachgeschoss gelangen Sie sowohl über eine offen gestaltete, architektonische Treppe als auch über einen internen Lift in die Empore, die mit einem eleganten Sitzbereich und herrlichem Blick auf den Aasee ausgestattet ist. Das ca. 30 m² große Schlafzimmer bietet eine ruhige Rückzugsmöglichkeit und viel Platz für individuelle Gestaltung, einschließlich eines Ankleidebereichs. Auf der gegenüberliegenden Seite der Empore erwartet Sie ein luxuriöses Wellnessbad mit Sauna, das Entspannung auf höchstem Niveau bietet.

Ideal für Alle, die das Besondere suchen!

Ausstattung

Ausstattungsmerkmale auf einen Blick:

- 34 m² große Dachterrasse mit Aaseeblick
- Ausrichtung Südwest
- elektrische Raffstoreanlagen
- lichtdurchflutet durch bodentiefe Fensterelemente
- bodentiefe Studiofenster
- repräsentatives, großzügiges Wohnen
- Kamin
- Hauswirtschaftsraum
- Tageslichtbäder
- Sauna
- Empore
- interner Lift ermöglicht aktives Wohnen bis in`s hohe Alter
- 2 x PKW-Garagestellplätze im Doppelparker
- 2 Kellerräume insgesamt ca. 26 m²

Allgemein:
- Luft/Wärme Wsserpumpe
- Photovoltaik
- Personenaufzug

... und vieles mehr - Hier bleiben keine Wünsche offen!

Fazit:
Dieses Penthouse ist ein wahres Meisterwerk der Architektur, das durch seine großzügigen, lichtdurchfluteten Räume, den atemberaubenden Ausblick auf den Aasee und die hochwertigen Ausstattungsmerkmale besticht. Es bietet zahlreiche Möglichkeiten für luxuriöses Wohnen und garantiert ein Höchstmaß an Komfort und Exklusivität.

Zusätzlich kann noch ein separates, angrenzendes 2-Zimmer-Appartement dazu erworben werden. Es bietet auf 48 m² Wohnfläche vielseitige Nutzungsmöglichkeiten: Es eignet sich hervorragend als Büro, Gästebereich oder für Unterstützung im Haushalt, etwa für ein AuPair oder Pflegepersonal.

Lage

Viele Grünflächen und die Nähe zum Aasee gestalten das Wohnviertel zu einem der beliebtesten Viertel Münsters!

Die zentrumsnahe Lage bietet neben zahlreichen parkähnlichen Flächen einen besonders lebenswerten Wohnort für Familien. In direkter Nachbarschaft befindet sich der Aasee, der ein attraktives Ausflugsziel der Münsteraner ist.

Der Aaseemarkt, ein interessanter Neubau, sichert Ihnen die Versorgung des täglichen Bedarfs – Supermärkte, Apotheken, ein Ärztehaus und einige Ladenlokale erreichen Sie innerhalb weniger als 5 Fußminuten! Frische Brötchen gibt es in nur 3 Fußminuten entfernt. Raum für viele Sportaktivitäten bietet Ihnen der Aaseepark, welcher mehrere Grünflächen und den Sportpark Sentruper Höhe umfasst. Joggen am Aasee erreichen Sie in nur 2 Fußminuten!

Der Aaseepark konnte sich in einem internationalen Wettbewerb 2008 als Vertreter von Deutschland durchsetzen und wurde als Europas schönster Park ausgezeichnet. Ihre Wohnung grenzt direkt an den Park, als direkter Nachbar.

In Ihrer Freizeit besuchen Sie die einladenden Restaurants mit Blick auf das Wasser direkt am Aasee!

Mit dem Fahrrad erreichen Sie in nur ca. 10 Minuten die schöne Innenstadt Münsters und fahren dabei stets entlang des Aasees und Münsters grüner Promenade. Unabhängig davon bietet der öffentliche Busverkehr eine ausgezeichnete Verkehrsanbindung.

Die traumhafte Lage schenkt Ihnen eine außergewöhnliche Wohnqualität!

Sonstiges

Ihre Wohnung in der Klausenerstrasse spielt als Lebensmittelpunkt für Ihre Zukunft eine entscheidende Rolle. Dieser Verantwortung sind wir uns als planendes und ausführendes Unternehmen bewusst und wollen dementsprechend für Sie ein zu Hause mit Wohlfühlatmosphäre erschaffen. Des Weiteren liegt uns am Herzen, dass Sie durch unsere Bauweise zukunftssicher in Bereichen wie Energieeffizienz sowie Ökologie aufgestellt sind. Dies erreichen wir mit nachhaltigen Baumaterialien, welche passend aufeinander abgestimmt werden.

Der Leitsatz „Gut ist nicht gut, wenn man Besseres erwarten kann“ ist als Fundament unserer Tätigkeit fest in der Unternehmensphilosophie verankert.

Unser Ziel ist es, Sie nicht nur zufriedenzustellen, sondern zu begeistern. Von der Planung über die fachgerechte Ausführung bis zur Schlüsselübergabe bieten wir von HOMANN exclusives wohnen höchste Qualität. Werterhalt sowie Wohlfühlen sind somit vorprogrammiert.
Hat dieses Projekt Ihr Interesse geweckt? Gerne stellen wir es Ihnen in einem persönlichen Gespräch detailliert vor.






Kaufpreisaufschlüsselung:

Penthouse: 3.200.000,00 €

2 x Pkw-Stellplätze Duplexparker: á 40.000,00 € = 80.000,00 €
1 x Abstellpatz für ein Lastenfahrrad mit Stromanschluss
2.500,00 €
3 x Fahrradabstellplätze mit Stromanschluss á 2.500,00 € =
7.500,00 €
5 x Fahrradabstellplätze ohne Stromanschluss á 1.500,00 € =
7.500,00 €

Kaufpreis insgesamt für das Penthouse: 3.297.500,00 €

Zusätzlich Kaufpreis für das 2-Raum-Appartement

Appartement: 470.000,00 €
1 x Fahrradabstellplatz inkl. Stromanschluss 2.500,00 €
1 x Fahrradabstellplatz ohne Stromanschluss 1.500,00 € =

Kaufpreis insgesamt für das Appartement 474.000,00 €

Sie kaufen PROVISIONSFREI direkt vom Bauträger.

Ansprechpartner

HOMANN IMMOBILIEN Münster GmbH

Telefon: 00492514184870
Telefax: 00492514184890

» homann@homann-immobilien.com
» Anbieter Impressum

Kontakt aufnehmen

Wohnung zum Kauf

Kaufpreis 3.200.000 €
Kaufpreis pro m² 11.985,02 €
Adresse 48151 Münster
Wohnfläche ca. 267 m²
Zimmer 6
Nutzfläche ca. 10 m²
Objekt-Nr. 1720

Ausstattung

Anzahl Badezimmer 2
Anzahl Balkone 2
Anzahl Etagen 2
Anzahl Stellplätze 2
Anzahl Zimmer 6
Baujahr 2025
Befeuerungsart Erdwärme mit Wärmepumpe
Fahrstuhl Personen
Heizungsart Fußbodenheizung
Kamin
Sauna
Duplexstellplätze 2
Stellplatzpreis (Duplex) 40.000 €
Verkaufstatus offen
Zustand projektiert

Erfolg! Vielen Dank für Ihre Bewertung.

Fehler! Bitte füllen Sie alle Felder aus.