Haus zum Kauf in Münster
Großzügige Doppelhaushälfte Sentruper Höhe
Beschreibung
Die Doppelhaushälfte entsteht auf der Sentruper Höhe in Münster, einem Wohngebiet mit hohem Freizeitwert. Der Aasee, das Freilichtmuseum und der Allwetterzoo liegen nur wenige Minuten entfernt. Direkt vor der Haustür beginnt ein ruhiger Weg für Fußgänger und Radfahrer, der durch Wiesen und Felder führt. Er eignet sich ideal für Spaziergänge und den täglichen Ausgleich im Grünen.
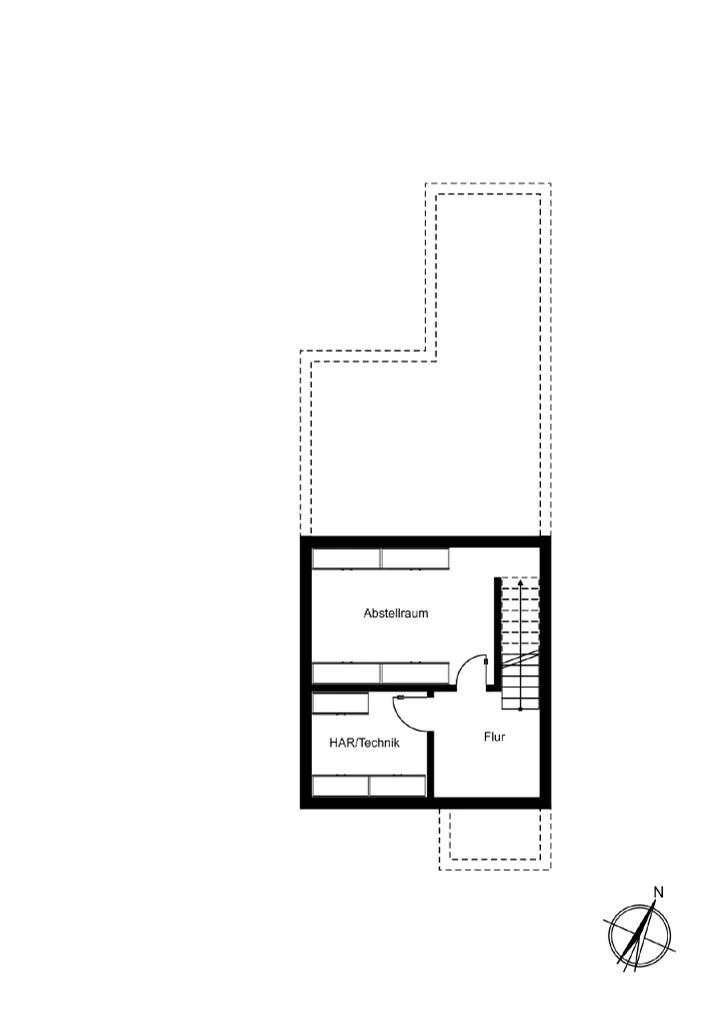
Die moderne Architektur, die klare Raumaufteilung und die energetische Ausstattung prägen das Haus. Es wird als Effizienzhaus 55 errichtet und erhält eine Luftwasserwärmepumpe sowie eine Fußbodenheizung in allen Etagen. Zwei Stellplätze, ein Teilkeller und ein kompakt geschnittenes Gartengrundstück ergänzen das Angebot. Die 2,13 m hohen Zimmertüren setzen in allen Etagen einen besonderen gestalterischen Akzent.
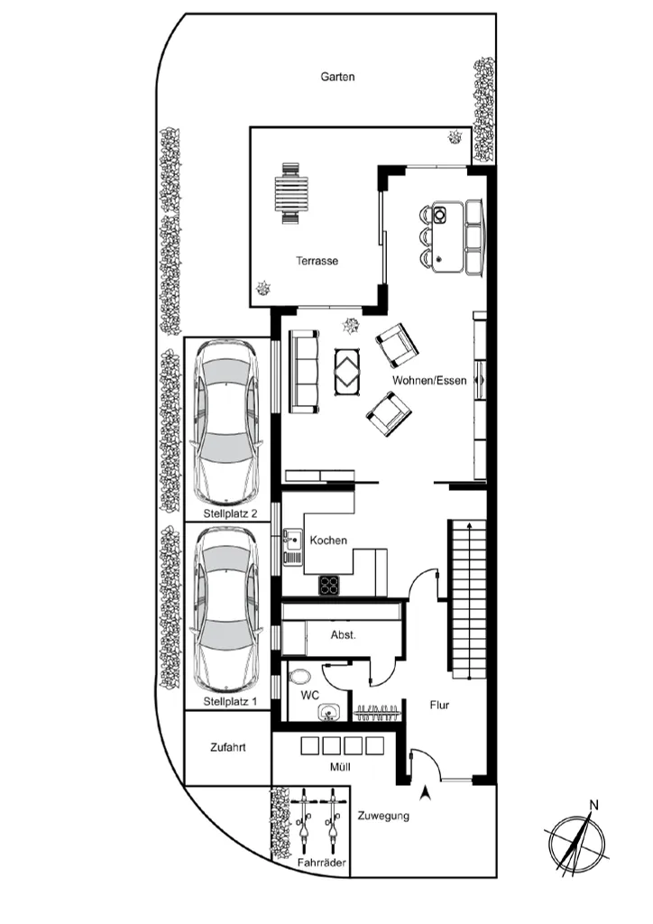
Im Erdgeschoss führt der Eingangsbereich über den Flur mit Garderobe und Gäste WC in den offen gestalteten Wohnbereich. Die Verbindung aus Küche, Essen und Wohnen umfasst 53,8 m² und öffnet sich zur Terrasse sowie zum Garten mit Nordwestausrichtung. Der Boden im Erdgeschoss wird als Fliesenbelag ausgeführt.
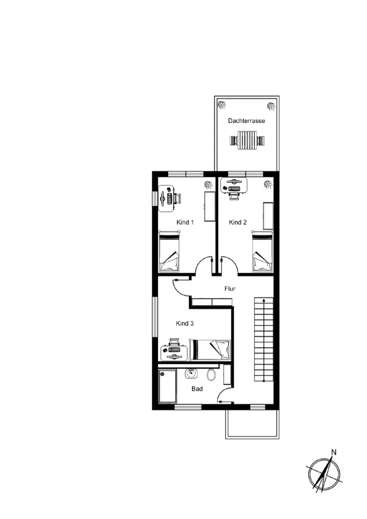
Das erste Obergeschoss verfügt über drei Zimmer mit jeweils etwa 13 m². Ein Zimmer bietet einen ruhigen Gartenblick, ein weiteres hat Zugang zur Dachterrasse und das dritte öffnet sich mit einem weiten Blick über Felder und Waldflächen. Das Tageslichtbad ist mit einer bodengleichen Dusche ausgestattet.
Im Dachgeschoss liegen ein Arbeitszimmer mit 9 m², ein Schlafzimmer mit 16,7 m² sowie ein Wannenbad mit 7,7 m². Die Wohnräume auf dieser und der darunterliegenden Etage erhalten einen Vinylboden in Holzoptik. Die bis zum Dach gezogenen Raumhöhen und die hohen Türen verstärken den großzügigen Eindruck.
Mit rund 177 m² Wohnfläche bietet das Haus sehr gute Voraussetzungen für eine Familie, die modernes und energieeffizientes Wohnen in naturnaher Lage sucht.
Der Energieausweis ist in Arbeit.
Lage
Diese Immobilie liegt in einer Wohnlage, die Ruhe und Nähe zu zentralen Zielen verbindet. Der Aasee und der Zoo befinden sich in unmittelbarer Umgebung. Der Domplatz ist mit dem Fahrrad in etwa zehn Minuten erreichbar. Eine Haltestelle des öffentlichen Nahverkehrs liegt rund sechs Minuten zu Fuß entfernt und bietet eine schnelle Anbindung in alle Stadtbereiche.
Münster verbindet eine lebendige Hochschulkultur mit einer historischen Altstadt und weitläufigen Grünflächen. Die Lage ermöglicht eine Kombination aus einem geschützten Wohnumfeld und der unmittelbaren Nähe zu wichtigen Einrichtungen, Einkaufsmöglichkeiten und Freizeitangeboten. Damit eignet sich das Umfeld für Familien und Berufstätige, die eine ruhige Wohnlage mit guter Erreichbarkeit schätzen.
Sonstiges
Baujahr: 2025
Befeuerung/Energieträger: Wärmepumpe
Heizungsart: Fußbodenheizung
Kontakt aufnehmen
Großzügige Doppelhaushälfte Sentruper Höhe
Ansprechpartner
Dr. Schorn GmbH
Telefon: +49 251 97212 0
Telefax: +49 251 97212 22
» kontakt@dr-schorn.de
» Anbieter Impressum
Haus zum Kauf
| Kaufpreis Preis auf Anfrage |
| Adresse 48149 Münster |
| Wohnfläche ca. 177 m² |
| Zimmer 6 |
| Grundstücksfläche ca. 246 m² |
| Objekt-Nr. 3636 |
Käuferprovision
2,975%
Ausstattung
| Anzahl Badezimmer 2 |
| Anzahl Schlafzimmer 5 |
| Anzahl Zimmer 6 |
| Baujahr 2025 |
| Befeuerungsart Luft/Wasser-Wärmepumpe |
| Provisionshinweis Der Käufer verpflichtet sich an die Dr. Schorn GmbH eine Maklergebühr in Höhe von 2,975 % inkl. 19% MwSt. des wirtschaftlichen Wertes (Kaufpreis zzgl. Zubehör etc.), den der Käufer dem Verkäufer schuldet, zu bezahlen. Seit dem 23.12.2020 gilt das neue Gesetz zur hälftigen Provisionsteilung von Käufer und Verkäufer, bei Einfamilienhäusern und Eigentumswohnungen: § 656 BGB. Der Verkäufer zahlt an die Dr. Schorn GmbH eine Maklergebühr in der gleichen Höhe. |
| Gäste-WC |
| Heizungsart Fußbodenheizung |
| Provisionspflichtig |
| Unterkellert |
| Zustand Rohbau |