Einzelhandel zur Miete in Münster
Handelsfläche (Gastronomie eingeschränkt) im Herzen von Münster !

offen

Beschreibung

Erleben Sie die einmalige Gelegenheit, neue Handels-und Gastronomieflächen im Herzen von Münster zu mieten. Dieses hervorragende Objekt ist integriert in den Münsteraner Hauptbahnhof und zeichnet sich durch seinen Erstbezug und seinem optimalen Standort aus. Ob Sie ein etabliertes Unternehmen sind oder ein neues Geschäft gründen möchten, diese Immobilie bietet die ideale Plattform für Ihren Erfolg. Nutzen Sie die erstklassige Lage, um Ihren Kundenstamm zu erweitern und Ihre Markenpräsenz signifikant zu steigern. Profitieren Sie von der modernen Architektur und den hohen Standards, die diese Gewerbeflächen auszeichnen.
Angeboten wird hier eine Handelsfläche, die auch gastronomisch genutzt werden kann ( jedoch nur bedingt ohne Nutzung eines Fettabscheiders - kein Imbiss möglich)!
Lassen Sie sich diese einzigartige Chance nicht entgehen, ein Top-Objekt in einer dynamischen und wachstumsorientierten Umgebung zu mieten.

Ausstattung

Die bereits ausgebaute Fläche, kann jedoch noch nach Absprache mit dem Vermieter noch nach Ihren Wünschen geändert werden, sofern das möglich ist.

Nehmen Sie Kontakt mit uns auf - wir beraten Sie gerne!

Lage

Der Münsteraner Hauptbahnhof inmitten der Stadt gelegen ist ein Knotenpunkt für regionale und überregionale Zugverbindungen (ICE- und IC-Strecken) sowie für den öffentlichen Nahverkehr und garantiert dadurch eine hohe Passantenfrequenz durch Reisende, Pendler und auch Einwohner der Stadt.
Nutzen Sie diese hervorragende Lage für Ihre Geschäftsidee.

Ansprechpartner

HOMANN IMMOBILIEN Münster GmbH

Telefon: 00492514184835
Telefax: 00492514184890

» m.forst@homann-immobilien.de
» Anbieter Impressum

Kontakt aufnehmen

Einzelhandel zur Miete

Miete zzgl. NK Preis auf Anfrage
Adresse 48155 Münster
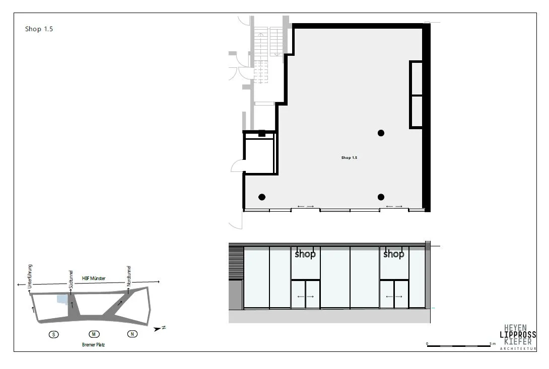
Nutzfläche ca. 102,18 m²
Gesamtfläche ca. 102,18 m²
Verkaufsfläche ca. 102,18 m²
Objekt-Nr. 2417

Ausstattung

Baujahr 2022
Provisionspflichtig
Verkaufstatus offen
Zustand Erstbezug

Erfolg! Vielen Dank für Ihre Bewertung.

Fehler! Bitte füllen Sie alle Felder aus.